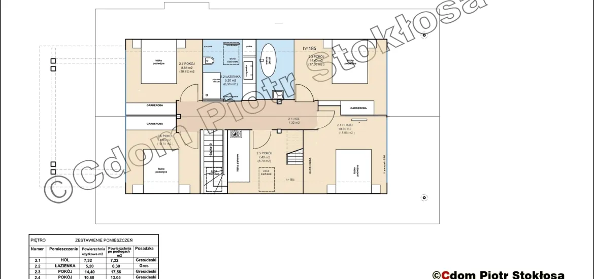
90B. NOWOCZESNY DOM Z BALA Z 5 POKOJAMI NA PODDASZU O POW. UŻYTKOWEJ 138,53 M2 20 July 2023 / Comments Dodane przez admin - 20 July 2023 sort 91