Przejdź do treści

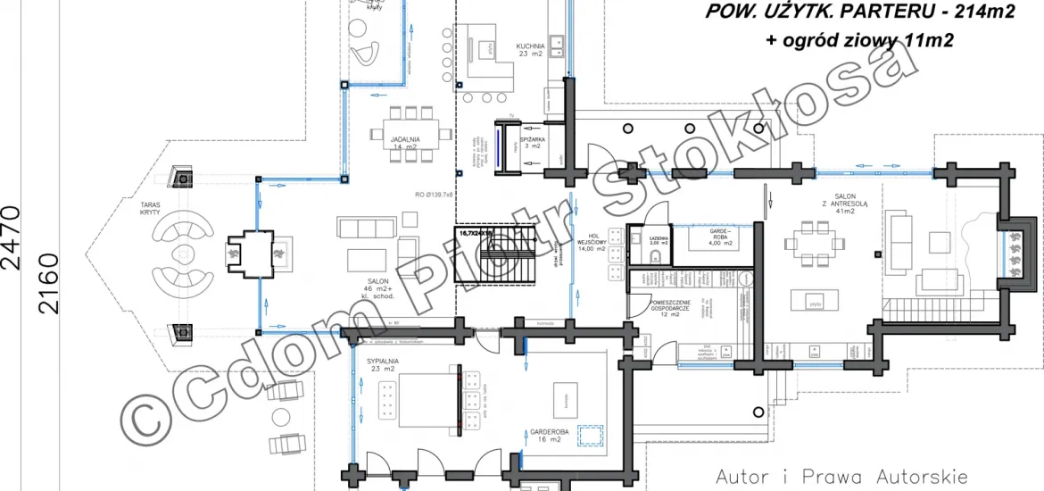
86B.NOWOCZESNY DOM Z BALA NAD SOLINA O POW 279M2

sort
87