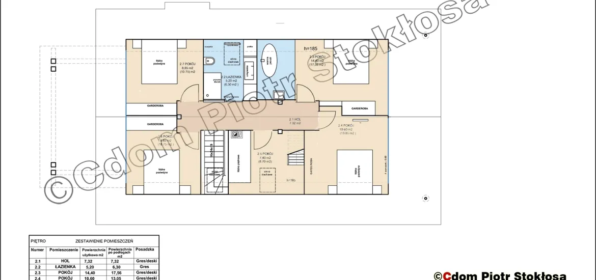
64B.NOWOCZESNY DOM Z BALI Z DUŻYM PRZESZKLENIEM NAROŻNYM W ZAWOI 21 July 2023 / Comments Dodane przez admin - 21 July 2023 sort 65