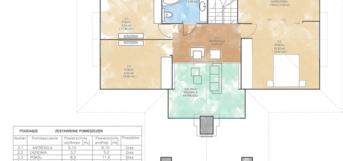
55B.Nowoczesny dom z bali o pow.147m2 21 July 2023 / Comments Dodane przez admin - 21 July 2023 sort 56