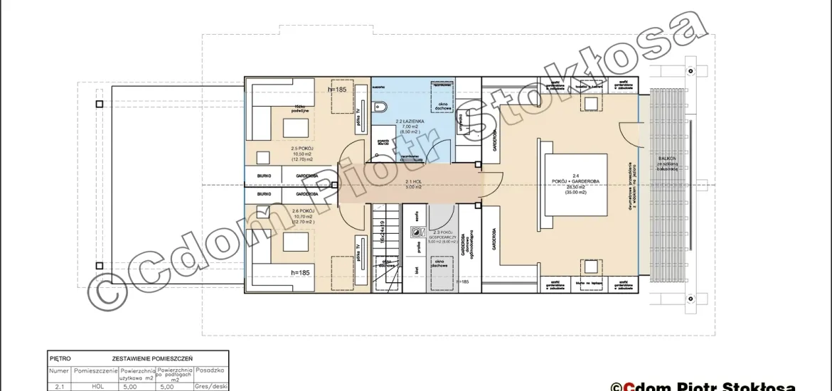
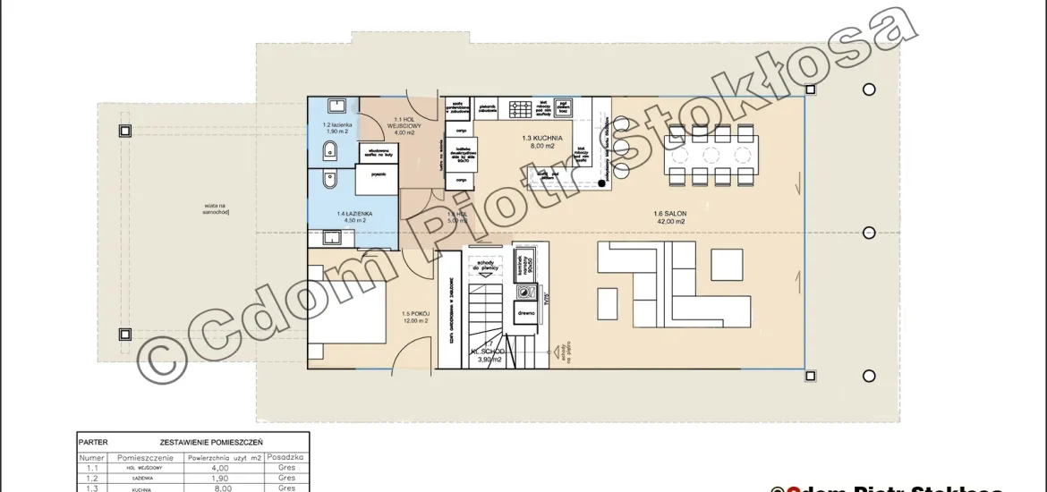
41B.NOWOCZESNY DOM Z BALI Z DACHEM DWUSPADOWYM I PODPIWNICZENIEM 230M2 21 July 2023 / Comments Dodane przez admin - 21 July 2023 sort 42