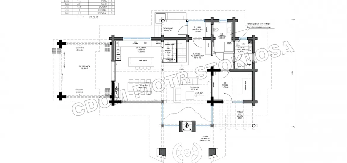
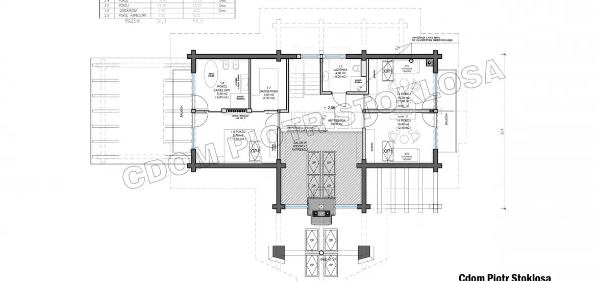
140B Nowoczesny dom z bala o pow. uzytkowej 160,80 m2 13 February 2025 / Comments Dodane przez admin - 13 February 2025 sort 140