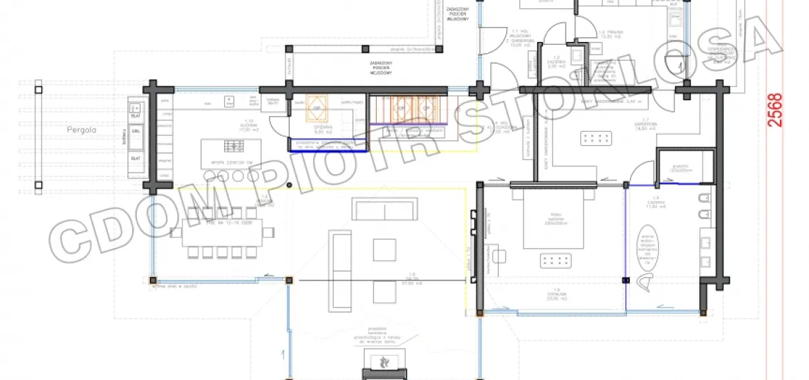
139B Nowoczesny dom z bala pod Szczyrkiem w wersji bal okragly 13 February 2025 / Comments Dodane przez admin - 13 February 2025 sort 139